商铺名称:江苏神禹环保设备有限公司
联系人:赵经理(先生)
联系手机:
固定电话:
企业邮箱:2058656550@qq.com
联系地址:无锡市锡山区锡北镇泾石路1号
邮编:214000
联系我时,请说是在勒克斯之家上看到的,谢谢!
无锡分流井截流井雨污分流设备厂家 详情致店:187 6152 1967 赵先生
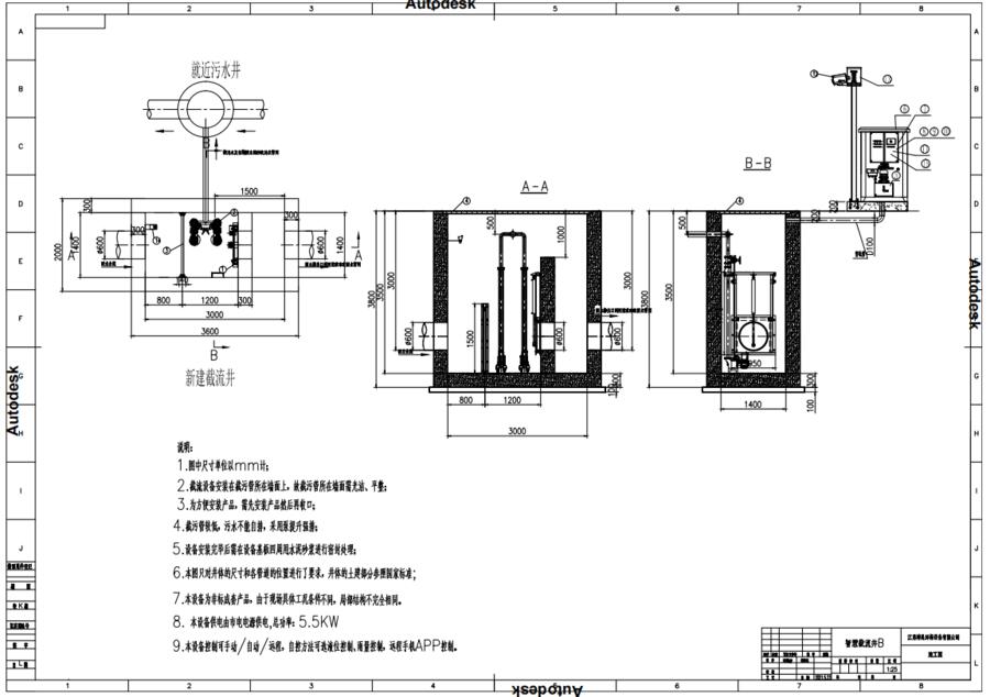
最近,无锡新吴区分流井截流井雨污分流方案出图,这个工程会有什么影响?这个方案是为了解决无锡市水环境污染严重,排水系统不完善等问题。据悉,该方案包括在分流井处安装截流井,对污水和雨水进行分流,并将污水引入污水处理厂处理。这项工程预计将耗资数十亿元,并需要大量的人力、物力和财力。不过,专家认为,这个工程可以有效减少无锡市的水环境污染,改善城市排水系统,提高居民的生活质量。同时,该工程也将成为无锡市的一个重要基础设施,为未来的城市发展打下坚实的基础。除此之外,无锡市还将加强对水环境的监测和管理,确保该工程的有效运行和维护。这项工程的实施将有助于提高无锡市的生态环境和城市品质,为居民创造更好的生活环境。
在这个繁忙的都市生活中,我们每天都在与各种污染源打交道,而截流井雨污分流设备原理介绍正是为了解决这一问题而生。这款产品以其独特的设计和卓越的性能,为我们的生活带来了一抹清新的色彩。截流井雨污分流设备原理介绍的核心理念是环保与科技的完美结合。它采用了先进的截流技术,能够有效地将雨水和污水分开,从而减少对环境的污染。同时,它还具备高效节能的特点,能够在保证处理效果的同时,降低能耗,实现可持续发展。
此外,截流井雨污分流设备原理介绍还具有安装简便、维护方便的优势。它的设计紧凑,占地面积小,可以广泛应用于城市道路、住宅小区、商业综合体等各种场景。同时,其模块化设计使得拆卸和更换变得轻而易举,大大降低了运营成本。在外观设计上,截流井雨污分流设备原理介绍同样独具匠心。采用简约时尚的线条,使其看起来更加美观大方。同时,它还拥有多种颜色可选,可以满足不同场景的需求,为城市增添一道亮丽的风景线。最重要的是,截流井雨污分流设备原理绍始终秉承着以人为本的理念,致力于为用户提供更加舒适、安全的使用体验。它的智能化控制系统可以实时监测设备的运行状态,确保设备的稳定运行,让用户无后顾之忧。总之,截流井雨污分流设备原理介绍是一款集环保、节能、美观、实用于一身的优秀产品。它将为我们的生活带来更多美好,让我们共同期待它在未来的表现吧!我们期待无锡分流井截流井雨污分流方案能为无锡市的城市建设和环境保护带来积极的影响。
??截流井雨污分流设备,让生活更美好!环保节能、高效实用,时尚美观又安全可靠!??
主体:
在这个繁忙的都市生活中,我们总是被各种污染问题困扰。为了让我们的家园更加美好,我们推出了一款神奇的设备——截流井雨污分流设备。这款设备的原理是什么呢?让我们一起来了解一下吧!??
首先,截流井雨污分流设备采用了先进的环保技术,能够有效地减少污水对环境的污染,同时节约能源,让您的生活更加绿色环保。????
其次,这款设备采用了独特的设计,能够快速地将雨水和污水分开,让您的排水系统更加高效,避免因为雨水倒灌而引发的各种问题。?????
再来说说安全可靠。截流井雨污分流设备采用了严格的质量把关,确保每一个细节都符合国家标准,让您使用起来更加放心。????
此外,这款设备的安装和维护都非常简单,让您轻松上手,无需专业人员指导,让您的生活更加便捷。?????????????
最后,截流井雨污分流设备的外观设计时尚美观,不仅能够提升您家的美观度,还能为您的生活增添一抹亮色。????
总结一下,截流井雨污分流设备原理介绍是一款集环保、高效、安全、简单、美观、专业于一体的神奇设备。让我们携手共创美好家园,让生活更加美好!快来加入我们,体验截流井雨污分流设备的神奇魅力吧!????
标签:
#截流井雨污分流设备 #环保节能 #高效实用 #时尚美观 #安全可靠 #简单易操作.